Hdb.org » D25 - Woodlands » D25 - Woodlands 5A » Woodlands Drive 62

5A for Sale - Woodlands Drive 62 - D25 - Woodlands - Woodlands Drive 62 - 460 000 SGD - 81298

460 000 SGD

Normal
YU LIANZHONG
YU LIANZHONG
Property Agent

Verified number: +6582983996

https://agent.sg/R024452C
Write message to

+65

Share this listing
Description

*** new listing****
683D Woodlands Drive 62
* Very near to Admiralty MRT.
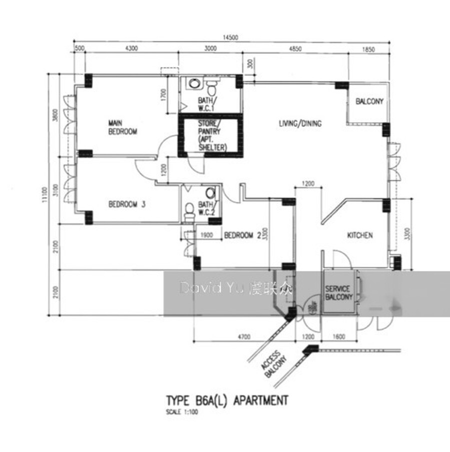
* 5Room unit 120sqm
* High floor. Lift Level.
* Well maintained, Move-in condition.
* Quiet facing
* Fully Air Con.
* With Balcony.
* Design & Build HDB.
* Spacious, Bright & Breezy.
* Accesible to SLE expressway
* Upcoming Hospital Due 2021
* Amenities: Supermarket n Wet markets, numerous eating establishments and shopping malls are Causeway point, Vista Point, Admiralty place.
* Few minutes drive to Johore Bahru
* View To Appreciate !!! 
* Serious seller. Chinese Owner.
* All race eligible. Can Contra.
==============================
David Yu
PropNex Premium Division
GENUINE Listings
For more info and exclusive viewings
Please call ***** David Yu for viewing appointment!

Estate details

Sale

Woodlands Drive 62

Woodlands Drive 62683D

460 000 SGD

3

5A

1291 sqft

356

81298

99-year Leasehold

Photos of this HDB
Location of this property
More estate type list in D25 - Woodlands