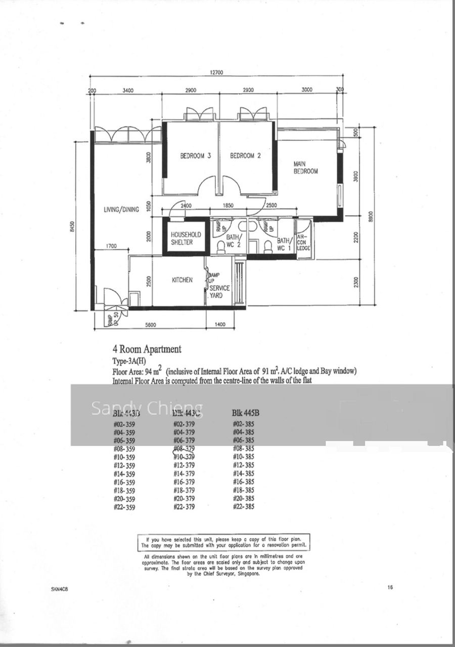
4A for Sale - Fernvale Road - D28 - Yio Chu Kang - Fernvale Road - 450 000 SGD - 81572

450 000 SGD

Negotiable
CHIENG SAI ANN
CHIENG SAI ANN
Property Agent

Verified number: +6596849096

https://agent.sg/R050205J
Write message to Sandy

+65

Share this listing
Description

NEW listing!!!!! MUST VIEW UNIT

CORNER unit!!

5 mins walking distance to Seletar Mall and Fernvale LRT

Designer renovation that unique to you only

Cosy and very functional layout

VIEW and fall in love at 1st sight

Estate details

Sale

Fernvale Road

Fernvale Road443C

450 000 SGD

Negotiable

2

0

4A

1012 sqft

444

81572

99-year Leasehold

Photos of this HDB
Location of this property
More estate type list in D28 - Yio Chu Kang