4NG New Generation for Sale - 511 West Coast Drive - D05 - Buona Vista - 511 West Coast Drive Singapore - 435 000 SGD - 1067355

435 000 SGD

Normal
LIEW OI FONG
LIEW OI FONG
Property Agent

Verified number: +6596185048

https://agent.sg/R012577Z
Write message to

+65

Share this listing
Description

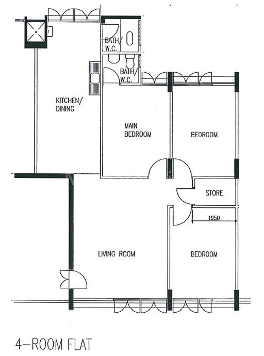
RE: Sale 4RM HDB @ Blk 511 West Coast Drive

- 92 sqm with spacious and squarish layout

- High Floor and Corner unit with one neighbour only

- Both bathrooms upgraded 2 years ago

- Normal sale completion process

- Seller Chines family

- For April, any ethnic group and SPR citizen can buy

Estate details

Sale

511 West Coast Drive

511 West Coast Drive Singapore0

435 000 SGD

3

2

990 sqft

1067355

Facilities
Key features:
  • High Floor
  • Corner Unit
Photos of this HDB
Location of this property
More estate type list in D05 - Buona Vista