3NG New Generation for Rent - 104 Bukit Purmei Road - D04 - Mount Faber - 104 Bukit Purmei Road Singapore - 2 100 SGD - 1071211

2 100 SGD

Normal
TAN TOH KENG WILLY
TAN TOH KENG WILLY
Property Agent

Verified number: +6590221131

https://agent.sg/R023507I
Write message to

+65

Share this listing
Description

*Can move in 4-5-2018
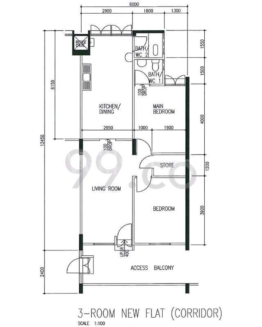
* 3rm A model High floor Unblocked
* Bright & Windy
*100% Move In Condition
*3 Buses (61, 143, 166) to Vivo City Shopping Mall & Harbourfront MRT
* 4 Buses (124, 166, 143, 61) to Singapore General Hospital
*1 Bus (121) to Tiong Bahru Plaza

* Enquiry & Viewing call Willy Tan hp: *****

Estate details

Rent

104 Bukit Purmei Road

104 Bukit Purmei Road Singapore0

2 100 SGD

2

2

762 sqft

1071211

Facilities
Key features:
  • High Floor
  • Renovated
  • Utility Room
Photos of this HDB
Location of this property
More estate type list in D04 - Mount Faber