Hdb.org » D05 - Buona Vista » D05 - Buona Vista 3S Simplified » 607 Clementi West Street 1

3S Simplified for Rent - 607 Clementi West Street 1 - D05 - Buona Vista - 607 Clementi West Street 1 Singapore - 1 999 SGD - 1071222

1 999 SGD

Normal
TAN TOH KENG WILLY
TAN TOH KENG WILLY
Property Agent

Verified number: +6590221131

https://agent.sg/R023507I
Write message to

+65

Share this listing
Description

Vacant Now - Key on hand for Viewing
All RACE- All foreigners & races can RENT in March 2018
Near NUS Campus Blk 607 Clementi West St 1
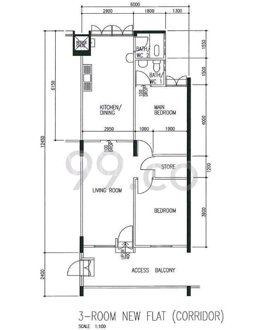
HDB 3 bedrooms For Rent
Nearby West Coast Plaza Shopping
Near Foods Centre /Wet Mkts & Supermkt
Furnished with air cons
Master Room with attached bathroom
High floor unit
Rental $2000/-
Enquiry & Viewing call Willy Tan hp: 9022113

Estate details

Rent

607 Clementi West Street 1

607 Clementi West Street 1 Singapore0

1 999 SGD

2

2

721 sqft

1071222

Facilities
Key features:
  • High Floor
  • Utility Room
Photos of this HDB
Location of this property
More estate type list in D05 - Buona Vista